Omakotitalo 7h, k, rt, 2kph, s, tkh, khh, 3wc, harrastetila, p, at

Nikkarintie 2b, Savitaipale, Savitaipale

Hinta
219 000 €

Koko
194 m² / null

Vuosi
1977

Tätä kotia ei ole vedetty peruspakasta! Savitaipaleen palveluiden äärellä, mutta silti sopivasti omassa rauhassa upea omakotitalo, josta ei tilaa puutu!

Pappilaksi aikoinaan vuonna 1977 rakennettu aumakattoinen täystiilitalo, joka on käynyt läpi mittavia uudistuksia 2010-luvulla ja sen jälkeenkin. 70-luvun tunnelmaa on säästetty juuri sopivasti pienten yksityiskohtien avulla. Maalämpö ja ilmalämpöpumppu lämmittävät verrattain pienellä rahalla, vaikka neliöitä talossa onkin useampi sata. Monikäyttöiset tilat mahdollistavat esim. työn tekemisen kotona tai monenlaiset harrastukset.

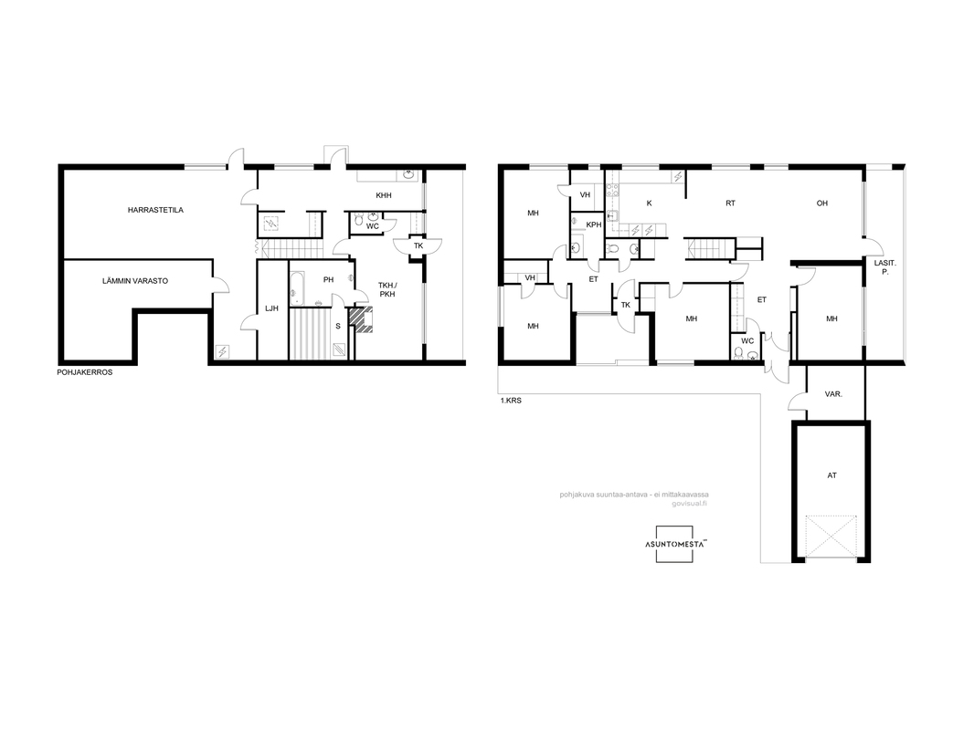
Tässä kodissa on sisääntulokerroksessa (yläkerta) neljä makuuhuonetta, tilava keittiö sekä avoin ruokailutila ja olohuone. Olohuoneesta pääsee lasitetulle terassiparvekkeelle, josta voi ihastella maisemaa Kuolimon suunnalle. Wc-tiloja on kaksi ja lisäksi erillinen kylpyhuone.

Alakerrassa on hulppean kokoinen harrastetila, jonka käyttömahdollisuuksissa on vain mielikuvitus rajana. Saunaosaston yhteydessä on leivinuunilla varustettu tunnelmallinen takkahuone/pukuhuone ja vielä yksi wc. Kodinhoidollekin on erinomaiset tilat ja kaikki perheen pienimmät ja karvaisetkin saa tuotua alakerran ovesta sisään ja suoraan huuhdeltavaksi. Pappilan vanha arkistohuone toimii valtavana lämpimänä varastotilana ja lisää säilytystilaa on vaatehuoneissa ja ulkovarastossa. Ja autotalli toki löytyy myös. Oma tontti on lähes puolen hehtaarin kokoinen, osin aidattu.

Varaa oma esittelyaikasi ja lähdet tutustumaan tähän upeaan kotiin, joka sykähdyttää persoonallisuudellaan.

Kohdenumero 20532776
Sijainti Nikkarintie 2b, 54800 Savitaipale
Huoneistoselitelmä 7h, k, rt, 2kph, s, tkh, khh, 3wc, harrastetila, p, at
Huoneita 6 h ja enemmän
Tyyppi Omakotitalo (kiinteistö)
Asuintilojen pinta-ala 194 m²
Pinta-alojen lisätiedot Yläkerran asuintilat rakennuspiirustusten mukaan noin 137 m2. Alakerran harrastetila noin 40 m2. Autotalli n. 20 m2. Rakennuksen kokonaisala on arviolta noin 300 m2. Pinta-aloja ei ole tarkistusmitattu ja ne on saatu rakennuspiirustuksista ja muista asiakirjoista, joten ne voivat poiketa olennaisestikin nykymääräysten mukaan mitattavista pinta-aloista.
Kerroksia 2
Vapautuminen viimeistään 2 kk kaupantekopäivästä
Kohteen kunto Hyvä
Energialuokka Ei lain edellyttämää energiatodistusta Lisätietoja energialuokasta: Myyjä hankkii ennen kaupantekoa.
Asbestikartoitus Ei
Rakennusvuosi 1977
Käyttöönottovuosi 1977

Velaton hinta 219 000 €
Myyntihinta 219 000 €
Velkaosuus -
Vuokrattu Ei
Muut maksut/lisätietoa maksuista
Kiinteistövero 355,50 e/v. 2025

Muut maksut Sähkönkulutus 13 163 kWh / v. 2024 (sisältää käyttösähkön sekä maalämpöpumpun ja ilmalämpöpumpun käyttämän sähkön). Varainsiirtovero 3 % kauppahinnasta.

Pihan kuvaus Iso nurmipiha, joka laskee takapihan puolelle ja edelleen kadulle.
Lämmitys Maalämpö asennettu 2012.
Lämmitysmuodot
  • puu
  • maalämpö
  • Ilmalämpöpumppu
Oma sauna Kyllä
Sähköliittymä siirtyy Kyllä
Kuntotarkistus tehty Kyllä
Tehdyt remontit 7/2005 Profiilipeltikatto uusittu. Kate ja aluskate uusittiin ja tausraken- teet tarkastettiin. 3/2012 Kattovalaisimia uusittu. 10/2012 Varaavaleivinuuni paikallaan muurattu. 11/2012 Wc-istuimet uusittu Wc-tiloissa. 1/2013 Keittiö kaapistot, koneet ja altaat uusittu, vessojen kalusteet uusittu (pl- alakerta). 1/2013 Kaikki lattiapinnat käsitelty tai uusittu vuosina 2013-2016. 3/2013 Maalämpö asennettu kaikkineen laiteineen. Maalämpökaivo porattu (toimenpideluvalla tehty, loppukatselmus suoritettu 5.6.2014). 5/2013 Maanpintojen kaltevuuden korjaus: maanpintaa alapihalla laskettu ja koko talon kaltevuudet korjattu, Salaojat tarkistettu, sadevesikaivot tehty, sokkelin vierustat kivetty, sokkelin maalaus. 9/2013 Yläpohja - Lämmöneristyksen lisäys. Kivivillaa lisätty 250mm, tuuletusta ei tukittu. 5/2015 Putkistot uusittu komposiittiputkella, muoviputkella ja kupariputkella 2015-2017. 6/2015 Ikkunat ja ovet - Peruskor- jaus. Eteläpuolen ikkunat huoltokorjattu, maalattu, helat kunnostettu/uusittu ja tiivisteet uusittu. Parvekeovet uusittu. 5/2016 Yläkerran kylpyhuoneen laatoi- tus ja vedeneristys uusittu, lattiakaivo uusittu. 2018 Alakerran järvenpuoleisen terassin kaide ja säleikkö rakennettu. 2019 Takapihan patio 3mx10m rakennettu. Yläkerran parveketta maalattu. 2020 Parvekelasit asennettu. Tontin raja-aita rakennettu. Eteisen viereisen makuuhuoneen lattia uusittu. 2021 Pation aita rakennettu. 2021-2022 Sälekaihtimet asennettu. 2022 Ilmalämpöpumppu asennettu. Ikkunoiden tiivisteet vaihdettu. 2023 kulmamakuuhuoneen seinät maalattu. Tulisijojen hormit on nuohottu vuosittain.
Palvelut
Koulu Savitaipaleen kirkonkylällä peruskoulu ja lukio.
Palvelut Savitaipaleen kirkonkylän kaikki peruspalvelut on lähettyvillä. Kuolimon rantaan muutama sata metriä.
Liikenneyhteydet
Liikenneyhteydet Lähiliikenne. Lappeenrantaan noin 40 km matkaa, Mikkeliin noin 50 km.
Tie perille Kyllä

Viemäri
  • kunnan
Säilytystilojen kuvaus Kaksi vaatehuonetta, valtava lämmin varasto (pommisuoja) alakerrassa. Kylmä ulkovarasto.
Muu varustelu
  • kaapistot
  • sälekaihtimet/rullaverhot
  • kiinteät valaisimet
  • ilmalämpöpumppu
  • pyykinkuivausteline
  • parveke-/terassilasitus
  • istutukset
Tulisija
  • muu
Vesihuolto
  • kunnan
Lisätietoja vesijohdosta Käyttövesijohdot ovat ajan saatossa uusittuja. Materiaalit vaihtelevat kuparista, muoviputkiin suojaputkessa ja komposiittiputkiin.
Katto
Kate profiilipelti
Katon kunto Uusittu 2005.
Rakennusmateriaalit
Rakennus- ja pintamateriaalien kuvaus Pääosin kivirakenteinen talo. Tiiliverhous.
Käytetyt rakennusmateriaalit
  • tiili
Keittiö
Keittiön varustelu Suuri keittiö, jossa paljon työtasotilaa ja säilytystilaa. Kiintokalusteet ja laitteet uusittu 2013.
Keittiön pöydät
  • laminaatti
Keittiön muu varustelu
  • mikroaaltouuni
  • astianpesukone
  • kiinteät valaisimet
  • liesituuletin / hormi
Liesi
  • erillisuuni
  • liesitaso
Jääkaappi ja pakastin
  • jääkaappi
  • pakastin
Keittiön lattia
  • parketti
Keittiön seinät
  • maalattu
  • tapetti
Kylpyhuone
Kylpyhuoneen kuvaus Yläkerrassa vuonna 2016 remontoitu erillinen kylpyhuone: sadesuihku ja käsisuihku, suihkuseinä, pyyheteline, pesuallas ja allalaatikosto, peili, lattialämmitys (sähköllä), naulakot. Lattia ja seinät laattaa. Alakerrassa saunaosastolla kylpyhuone, jossa suihku ja kylpyamme. Lattiat ja seinät laattaa.
Sauna
Saunan kuvaus Varaus myös sähkökiukaalle. Lauteet uusittu jossain kohtaa aikavälillä 2012-2016 (ed. omistajan toimesta).
Kiuas
  • puukiuas
Saunan lattia
  • laatta
Saunan seinät
  • puu
Makuuhuone
Makuuhuoneen kuvaus Tilavat makuuhuoneet, kaikki sisääntulokerroksessa (yläkerta).
4
Makuuhuoneen lattia
  • laminaatti
Makuuhuoneen seinät
  • maalattu
  • tapetti
Olohuone
Olohuoneen lattia
  • parketti
Olohuoneen seinät
  • maalattu
Pesutilat
Pesutilojen lattia
  • laatta
Pesutilojen seinät
  • kivi
WC-tilat
WC-tilojen kuvaus Kolme erillistä wc:tä. Kaksi yläkerrassa ja yksi alakerrassa. WC1 (et): allaslaatikosto, pesuallas, peili, bideesuihku, wc. Lattia muovi, seinät maalattu. WC2: pesuallas, allaskaappi, wc, peili, bidee-suihku. Lattia laatta, seinät tapetti. WC3 (ak): pesuallas, wc, peili, bidee-suihku. Lattia laattaa, tiiliseinät.

Tontin nimi Lintula
Koko 4 133 m²
Omistus Oma
Kaavoitustilanne
  • Asemakaava
Kiinteistötunnus 739-426-4-131
Rakennukset
  • Autotalli ja varasto talon yhteydessä, erillisessä siivessä. Autotallissa vesipiste ja vesikiertoinen patteri.
  • autotalli
  • varasto
Ranta
  • ei rantaa

Kuntotutkimuksista Kuntoarvio 2011. Kuntotarkastus 2017.

Yrityksen nimi Asuntomesta Oy
Toimiston nimi Asuntomesta Oy LKV
Osoite Valtakatu 38, LAPPEENRANTA
Toimiston puhelin +358 5 5412 030
Toimiston sähköposti [email protected]
Takaisin kohdelistaan