Omakotitalo 5h, k, rt, s-os, harrastetila/työhuone, autokatos

Tellervonkatu 16, Alakylä, Lappeenranta

Hinta
282 000 €

Koko
110 m² / 165,20 m²

Vuosi
1955

Kauppaa varten juuri kuntotarkastettu, huolella pidetty talo, jolla loistava sijainti, erinomaiset tilat ja hyvä varustelutaso!

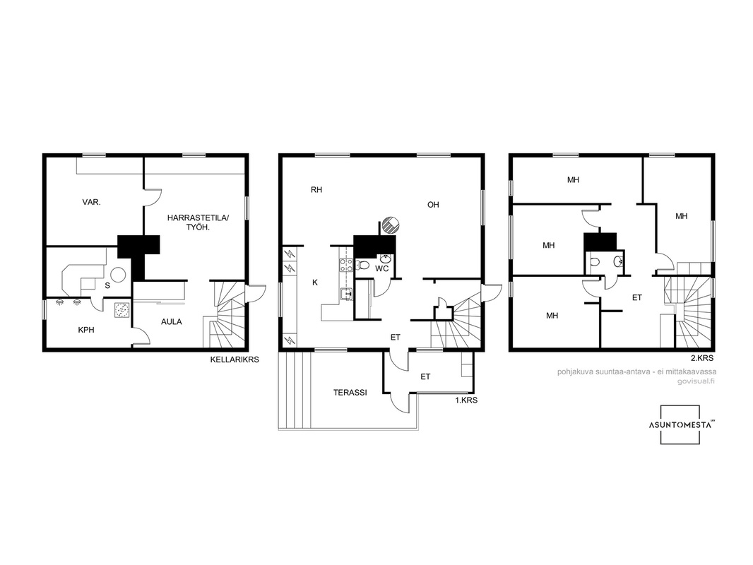
Alakylän suositulla alueella sijaitseva, paljon isoja uudistuksia läpikäynyt omakotitalo, joka on juuri kuntotarkastettu myyntiä varten. Sisääntulokerroksessa sijaitsevat moderni keittiö, iso ruokailutila sekä olohuone, jonka sydämenä on varaava pönttöuuni. Vaaleat sävyt jatkuvat läpi koko talon ja tunnelma on rauhallinen. Yläkerta on avattu ja remontoitu sähköjä ja kaukolämpöputkia myöten parisen vuotta sitten ja nykyisen perheen tarpeisiin tilaan valmistui neljä makuuhuonetta. Molemmista kerroksista löytyy myös wc.

Kellarikerroksessa on talon saunatilat sekä iso harraste-/työhuone, jonka käyttömahdollisuuksissa on vain mielikuvitus rajana. Iso varastohuone ja erillisen uudehkon piharakennuksen kaksi lämmintä varastoa takaavat, ettei säilytystila lopu ihan äkkiä kesken. Autokatoskin löytyy ja valmiina varaus sähköauton lataukselle. Oma piha on helppohoitoinen ja suojaisa, osin nurmea ja osin asfaltoitu.

Kohde on juuri kuntotarkastettu kauppaa varten ja on tarlastuksen mukaan ikäisekseen erittäin hyvässä kunnossa.

Tervetuloa tutustumaan tähän upeaan kotiin!

Kohdenumero 20176013
Sijainti Tellervonkatu 16, 53100 Lappeenranta
Huoneistoselitelmä 5h, k, rt, s-os, harrastetila/työhuone, autokatos
Huoneita 6 h ja enemmän
Tyyppi Omakotitalo (kiinteistö)
Asuintilojen pinta-ala 110 m²
Pinta-alojen lisätiedot Autokatos ja varasto n. 55,2 m2.
Vapautuminen 2 kk kaupantekopäivästä / sopimuksen mukaan
Kohteen kunto Hyvä
Energialuokka C2018.
Asbestikartoitus Ei
Rakennusvuosi 1955
Käyttöönottovuosi 1955

Velaton hinta 282 000 €
Myyntihinta 282 000 €
Velkaosuus -
Vuokrattu Ei
Muut maksut/lisätietoa maksuista
Kiinteistövero 410 € / vuosi

Muut maksut Varainsiirtovero 3 % kauppahinnasta.

Pihan kuvaus Takapiha nurmea, erotettu asfaltoidusta osasta kivimuurilla ja istutuksilla. Kulkuväylät asfaltoitu molemmin puolin taloa.
Lämmitysmuodot
  • kaukolämpö
  • puu
  • Ilmalämpöpumppu
Oma sauna Kyllä
Sähköliittymä siirtyy Kyllä
Antennijärjestelmä Antenni
Kuntotarkistus tehty Kyllä
Tehdyt remontit 1993 ikkunat uusittu. 1998-1999 sähköt uusittu. Käyttövesijohdot ja viemäriputket talossa uusittu, tarkkaa tietoa ajankohdasta ei ole, arvio 1990-luvun lopussa tai 2000-luvun alussa. 2000 julkisivun rappaus maalattu. 2004 vesikate maalattu, uusimisvuodesta ei tietoa (ei ole alkuperäinen). 2007 pesuhuone, sauna ja alakerran wc uusittu. 2016 olohuone, ruokailutila ja eteinen pintaremontoitu. 2017 kaukolämpökeskus uusittu, sadevesikourut ja syksytorvet uusittu. 2018 keittiö uusittu, kuisti remontoitu lämpimäksi tilaksi ja pinnat uusittu, myös ekovillat vaihdettu. 2019 terassi rakennettu. Varaava pönttöuuni uusittu olohuoneeseen. 2021 yläkerta remontoitu kokonaan: purettu väliseinät ja avattu ulkoseinien sisäpinnat, rakennettu neljä makuuhuonetta, uusittu kaukolämpölinjat ja sähköt, wc remontoitu. 2022 piharakennus rakennettu: autokatos, kaksi varastoa (lattialämmitys molemmissa). Asennettu taloon ilmalämpöpumppu. 2022 Uusittu pihan jätevesikaivot ja sukitettu talon läpivientiviemäri. 2023 pihan kulkuväylät ja autokatos asfaltoitu. 07/2025 hormit nuohottu. 2025 Vanhat patteritermostaatit vaihdettu uusiin sekä yläpohjan tuuletusta lisätty.
Palvelut
Päiväkoti Keskustan alueen päiväkodit.
Koulu Kimpisen yhtenäiskoulu, matkaa n. 1 km. Lukiot ja Sampo-ammattiopisto keskustassa myös.
Palvelut Lähin ruokakauppa K-Market Ratakatu n. 300 m. Keskustaan noin 1 km, kaikki palvelut siis lähellä.
Liikenneyhteydet
Liikenneyhteydet Matkakeskus n. 300 m.
Tie perille Kyllä

Viemäri
  • kunnan
Säilytystilojen kuvaus Lämmin varastotila talon kellarikerroksessa. Piharakennuksessa kaksi lämmintä varastoa.
Muu varustelu
  • kaapistot
  • sälekaihtimet/rullaverhot
  • verhotangot
  • kiinteät valaisimet
  • ilmalämpöpumppu
  • jätesäiliö
  • istutukset
Tulisija
  • takka
Vesihuolto
  • kunnan
Lisätietoja vesijohdosta Käyttövesijohdot uusittu 2000-luvun alkupuolella.
Materiaalit
Lattiamateriaali Tuulikaapin/eteiskuistin lattia vinyylilaattaa.
Kattomateriaali Valkoiset paneelit.
Katto
Kate galvanoitu saumapelti
Katon kunto peltikate maalattu 2004, kunto tarkastettu viimeksi 2021.
Rakennusmateriaalit
Rakennus- ja pintamateriaalien kuvaus Puurunko, kellarikerroksen perusmuuri ja sokkeli teräsbetonia. Rakennuksen verhouksena on rappaus. Sadevedet johdettu terassin puoleiselta sivulta kadulle, putki asfaltin alla. Muualta imeytyy maahan.
Käytetyt rakennusmateriaalit
  • puu
  • betoni
Keittiö
Keittiön varustelu Keittiö uusittu 2018, ikkunat kahteen suuntaan. Kodinkoneet integroitu kalusteisiin, rosteriallas, musta komposiittihana, led-valaistus välitilassa, kvartsitasot, musta seinävalaisin.
Keittiön muu varustelu
  • mikroaaltouuni
  • astianpesukone
  • kiinteät valaisimet
  • liesituuletin / suodatin
Liesi
  • erillisuuni
  • liesitaso
Jääkaappi ja pakastin
  • jääkaappi
  • pakastin
Keittiön lattia
  • laminaatti
Keittiön seinät
  • maalattu
Kylpyhuone
Kylpyhuoneen kuvaus Kaksi suihkua, pesukoneliitäntä, lattialämmitys. Lasitiili-ikkuna, naulakot.
Kylpyhuoneen lattia
  • laatta
Kylpyhuoneen seinät
  • kaakeli
Sauna
Saunan kuvaus Harvia-pystykiuas.
Kiuas
  • sähkökiuas
Saunan lattia
  • laatta
Saunan seinät
  • puu
Makuuhuone
4
Makuuhuoneen lattia
  • parketti
Makuuhuoneen seinät
  • maalattu
Olohuone
Olohuoneen lattia
  • laminaatti
Olohuoneen seinät
  • maalattu
WC-tilat
WC-tilojen kuvaus Kaksi wc:tä. Alakerran wc (2007): pesuallas ja allaskaappi, peilikaappi, bidee-suihku, seinäkaappi, naulakot. Lattiat ja seinät laatoitettu. Yläkerran wc (2021): pesuallas ja allaslaatikosto, seinä-wc, peilikaappi, bidee-suihku, naulakot. Lattiat laattaa, seinät tiiltä / maalattu.

Rakennusoikeus e-luku 0.3
Koko 674 m²
Omistus Oma
Kaavoitustilanne
  • Asemakaava
Kiinteistötunnus 405-10-25-11
Rakennukset
  • Erillinen autokatos-varastorakennus (rakennusala 55,2 m2) rakennettu 2022. Leveä autokatos (auton ovet mahtuu hyvin aukeamaan molemmin puolin), jossa varaus sähköauton latausasemalle, kaksi varastotilaa á 8 m2, joissa sähköinen lattialämmitys. Päässä lisäksi katos esim. halkojen säilytykseen tai pyöräkatokseksi. Käsinveistetty upea hirsileikkimökki.
  • autokatos

Kuntotutkimuksista Kuntotarkastukset tehty vuosina 2025, 2016 ja 2010.

Esittelyaika 21.07. 17:00 - 18:00
Esittelijä Hartikainen Ulla
p. 044 7979 160
Sähköposti [email protected]
yleisesittely

Yrityksen nimi Asuntomesta Oy
Toimiston nimi Asuntomesta Oy LKV
Osoite Valtakatu 38, LAPPEENRANTA
Toimiston puhelin +358 5 5412 030
Toimiston sähköposti [email protected]
Takaisin kohdelistaan