Omakotitalo 4h, k, s, tkh, at, verstas
Kisakatu 14, Parkkarila, Lappeenranta
Hinta
146 000 €
Koko
100 m² / 200 m²
Vuosi
1960
Nyt katse tulevaan kesään!
Tätä taloa on huolella hoidettu ja vuosien aikana uudistettu.
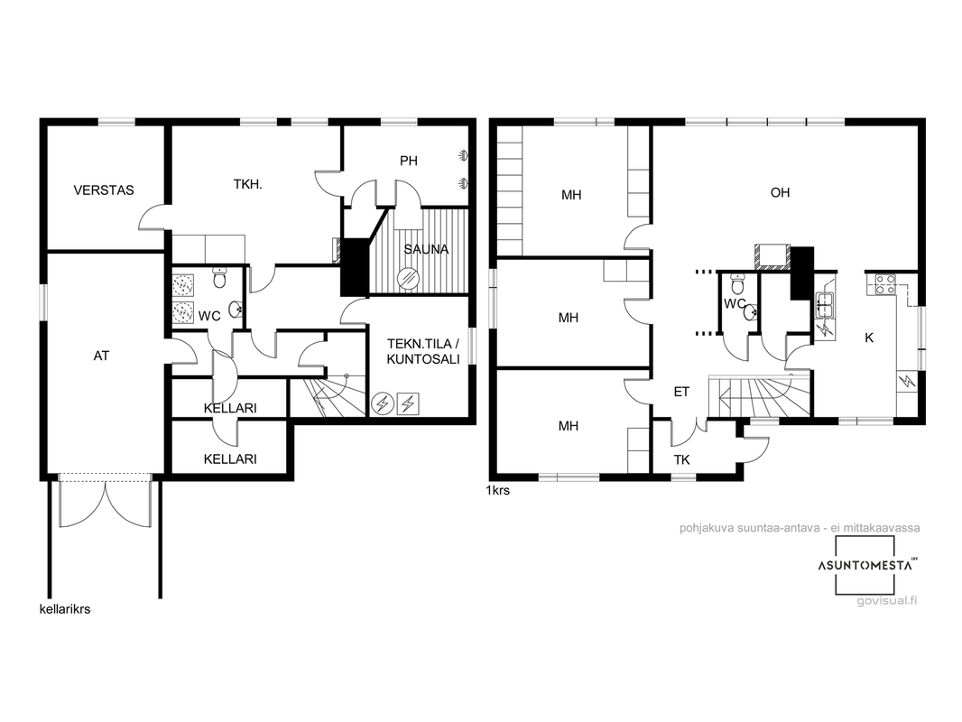
Astutaanpa sisään ja tehdään kierros. Periaatteessa kaikki perustoiminnot on sijoitettu yhteen tasoon. Kolme tilavaa makuuhuonetta, todella iso olohuone, keittiö ja wc.
Laskeudutaan alakertaan, jossa odottaa upea saunaosasto ja takkahuone, joka muuntuu moneksi. Oleskelutila, harrastetila, vierashuone tai lasten oma puuhahuone.
Lisäksi on paljon säilytystilaa kellareissa, teknisen tilan yhteydessä ja ns. verstaassa.
Autotalli toiminut varastona, mutta on muutettavissa alkuperäiseen käyttö muotoonsa.
| Kohdenumero | 20929768 |
|---|---|
| Sijainti | Kisakatu 14, 53200 Lappeenranta |
| Huoneistoselitelmä | 4h, k, s, tkh, at, verstas |
| Huoneita | 5 h |
| Tyyppi | Omakotitalo (kiinteistö) |
| Asuintilojen pinta-ala | 100 m² |
| Pinta-alojen lisätiedot | Rakennuksen pinta-alatiedot on myyjältä saatu arvio. Pinta-aloja ei ole tarkistusmitattu. |
| Vapautuminen | sopimuksen mukaan / viimeistään 2 kk kaupasta |
| Kunto | Kuntotarkastus tehty 05/2025. |
| Kohteen kunto | Hyvä |
| Energialuokka | C2018. |
| Asbestikartoitus | Ei |
| Rakennusvuosi | 1960 |
| Velaton hinta | 146 000 € |
|---|---|
| Myyntihinta | 146 000 € |
| Velkaosuus | - |
| Vuokrattu | Ei |
| Muut maksut | Varainsiirtovero 3 % kauppahinnasta. |
|---|
| Pihan kuvaus | Osin luonnontilassa oleva niittymäinen pihapiiri. Omenapuita ja muita hyötykasveja. |
|---|---|
| Lämmitys | ilmavesilämpöpumppu asennettu 2020. |
| Lämmitysmuodot |
|
| Oma sauna | Kyllä |
| Sähköliittymä siirtyy | Kyllä |
| Antennijärjestelmä | Antenni |
| Kuntotarkistus tehty | Kyllä |
| Tehdyt remontit | Valokuituvalmius (Valoo) 2025. Ilmavesilämpöpumppu asennettu 2020, huollettu 2025. Patolevyt ja salaojakaivot 2018. Sadevesikourut ja sadevesikaivot 2018. Sauna ja pesuhuone remontoitu 2018. Lumiesteitä uusittu 2018. Keittiön kaappien ovet ja lattia 2017. Viemärit pinnoitettu 2017. Ilmalämpöpumppu asennettu n. 2015. Ulko-ovi uusittu 2013. Käyttövesijohdot uusittu 2002. Tonttiliittymät 2002. Keittiö remontoitu noin 2000. Vesikattoremontti 1999. Huoneilman radonmittaus tehty 1994. Lisälämmöneristys (puhallusvilla) 1981. Ikkunat alkuperäiset, asennettu lisäpuitteet vuonna 1981. |
| Palvelut | |
|---|---|
| Koulu | Kaukaan alakoulu, Kimpisen yläkoulu. |
| Palvelut | Lähin ruokakauppa K-Supermarket Lehmus. Keskustaan noin 3 km. Jäähalli vieressä, samoin metsäiset ulkoilumaastot ja pururadat. |
| Liikenneyhteydet | |
|---|---|
| Liikenneyhteydet | Paikallisliikenne Parkkarilankatua. |
| Tie perille | Kyllä |
| Viemäri |
|
|---|---|
| Säilytystilojen kuvaus | Kaapistot, talouskellarit, autotalli. Varastohuone yläkerran wc:n vieressä. |
| Muu varustelu |
|
| Tulisija |
|
| Vesihuolto |
|
| Materiaalit | |
|---|---|
| Lattiamateriaali | Olohuoneen ja eteisaulan lattia saarniparkettia. |
| Katto | |
|---|---|
| Kate | profiilipelti |
| Rakennusmateriaalit | |
|---|---|
| Rakennus- ja pintamateriaalien kuvaus | Puurunko, kuitusementtilevyverhous. |
| Käytetyt rakennusmateriaalit |
|
| Keittiö | |
|---|---|
| Keittiön varustelu | Vaaleat kaapistot, paljon kaappitilaa ja työtasotilaa. Ikkunat kahteen suuntaan. |
| Keittiön pöydät |
|
| Keittiön muu varustelu |
|
| Liesi |
|
| Jääkaappi ja pakastin |
|
| Keittiön lattia |
|
| Keittiön seinät |
|
| Kylpyhuone | |
|---|---|
| Kylpyhuoneen kuvaus | Kaksi suihkua. |
| Kylpyhuoneen lattia |
|
| Kylpyhuoneen seinät |
|
| Sauna | |
|---|---|
| Kiuas |
|
| Saunan lattia |
|
| Saunan seinät |
|
| Makuuhuone | |
|---|---|
| 3 | |
| Makuuhuoneen lattia |
|
| Makuuhuoneen seinät |
|
| Olohuone | |
|---|---|
| Olohuoneen lattia |
|
| Olohuoneen seinät |
|
| WC-tilat | |
|---|---|
| WC-tilojen kuvaus | 1. kerroksen wc: pesuallas, peili, seinähyllyt, wc, bidee-suihku. Lattia: muovimatto. Seinät: puolipaneeli, maalattu. Kellarikerroksen wc: pesuallas, peili, seinähyllyt, bidee-suihku, wc, pesukoneliitäntä ja tila pesukoneelle ja kuivausrummulle. Lattia: laatta. Seinät: maalattu, tiili. |
| Koko | 1 172 m² |
|---|---|
| Omistus | Oma |
| Kaavoitustilanne |
|
| Kiinteistötunnus | 405-31-14-9 |
| Nimi | Hartikainen Ulla |
|---|---|
| Sähköposti | [email protected] |
| Puhelin | 044 7979 160 |
| Yrityksen nimi | Asuntomesta Oy |
| Toimiston nimi | Asuntomesta Oy LKV |
| Yrityksen nimi | Asuntomesta Oy |
|---|---|
| Toimiston nimi | Asuntomesta Oy LKV |
| Osoite | Raatimiehenkatu 13 lh 9, LAPPEENRANTA |
| Toimiston puhelin | +358 5 5412 030 |
| Toimiston sähköposti | [email protected] |