Omakotitalo 3h, k, s, pkh, p
Venerannantie 3, Laihia, Lappeenranta
Hinta
30 000 €
Koko
104 m²
Vuosi
1950
Murheistenranta upeine hiekkarantoineen Laihian kaupunginosassa, voi olla monelle tuttu. Vieraampi voi olla asuinalue, joka jatkuu rannan tuntumasta, Laihianrannantie, Myllyniementie ja Venerannantie jne.
Oma Palomäki-niminen tila on 2179 m² sijoittuen Venerannantie ja Myllyniementien väliin. Tilalla sijaitsee paljon elämää nähnyt talo, joka saanut aikojen saatossa lisäsiipeen saunaosaston.
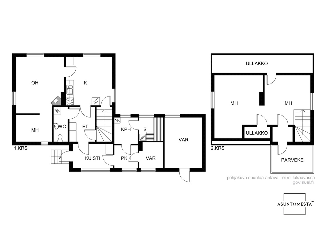
Alakerrassa on keittiön lisäksi olohuone ja pieni makuuhuone ja wc. Yläkerrassa kaksi huonetta.
Tämä rakennus vaatii isomman peruskunnostuksen tai on raivattava uuden tieltä pois.
Rohkeasti tutustumaan ja tarjoamaan.
| Kohdenumero | 20596495 |
|---|---|
| Sijainti | Venerannantie 3, 53400 Lappeenranta |
| Omistusmuoto | Oma |
| Huoneistoselitelmä | 3h, k, s, pkh, p |
| Huoneita | Ei luokiteltu |
| Tyyppi | Omakotitalo (kiinteistö) |
| Asuintilojen pinta-ala | 104 m² |
| Kerroksia | 2 |
| Vapautuminen | sopimuksen mukaan |
| Kohteen kunto | Ei luokiteltu |
| Energialuokka | H. |
| Asbestikartoitus | Ei |
| Rakennusvuosi | 1950 |
| Käyttöönottovuosi | 1950 |
| Velaton hinta | 30 000 € |
|---|---|
| Myyntihinta | 30 000 € |
| Velkaosuus | - |
| Vuokrattu | Ei |
| Muut maksut/lisätietoa maksuista | |
|---|---|
| Kiinteistövero | 120,00 |
| Muut maksut | Varainsiirtovero 3 % kauppahinnasta. |
|---|
| Lämmitys | Sähkö. |
|---|---|
| Lämmitysmuodot |
|
| Oma sauna | Kyllä |
| Sähköliittymä siirtyy | Kyllä |
| Antennijärjestelmä | Antenni |
| Tehdyt remontit | Laajennus 1975: siipiosa, jossa saunatilat ja vanha autotalli (nyk. varasto). Laajennus 1980: rakennettu yläkerran ullakkohuone ja kattoterassi/parveke. Autotalli muutettu varastoksi. Muutostyö 1980: autovaja muutettu puuvajaksi. |
| Palvelut | |
|---|---|
| Päiväkoti | Pontuksella |
| Koulu | Pontuksen alakoulu, Lauritsalan yläkoulu. |
| Palvelut | Lauritsalan palvelut. Venerannantien päässä venelaiturit. |
| Liikenneyhteydet | |
|---|---|
| Liikenneyhteydet | Paikallisliikenne Muukontietä |
| Tie perille | Kyllä |
| Viemäri |
|
|---|---|
| Säilytystilojen kuvaus | Ullakkovarastot, puuvaja (ent. pieni autotalli). |
| Muu varustelu |
|
| Tulisija |
|
| Vesihuolto |
|
| Lisätietoja vesijohdosta | Käyttövesiputket kupari, suojaputkessa. Myllyniemen vesiosuuskunta. |
| Katto | |
|---|---|
| Kate | pelti |
| Rakennusmateriaalit | |
|---|---|
| Käytetyt rakennusmateriaalit |
|
| Keittiö | |
|---|---|
| Keittiön pöydät |
|
| Keittiön muu varustelu |
|
| Liesi |
|
| Jääkaappi ja pakastin |
|
| Keittiön lattia |
|
| Keittiön seinät |
|
| Kylpyhuone | |
|---|---|
| Kylpyhuoneen varustelu |
|
| Kylpyhuoneen lattia |
|
| Kylpyhuoneen seinät |
|
| Sauna | |
|---|---|
| Kiuas |
|
| Saunan lattia |
|
| Saunan seinät |
|
| Makuuhuone | |
|---|---|
| Makuuhuoneen kuvaus | Alakerrassa yksi makuuhuone/makuualkovi, yläkerrassa iso huone, joka on jaettu kevyellä väliseinällä kahdeksi tilaksi. |
| Makuuhuoneen lattia |
|
| Makuuhuoneen seinät |
|
| Olohuone | |
|---|---|
| Olohuoneen lattia |
|
| Olohuoneen seinät |
|
| WC-tilat | |
|---|---|
| WC-tilojen kuvaus | Pesuallas ja wc, pesukoneliitäntä, kuivauspatteri. |
| WC-tilojen lattia |
|
| WC-tilojen seinät |
|
| Tontin nimi | Palomäki |
|---|---|
| Koko | 2 179 m² |
| Omistus | Oma |
| Kaavoitustilanne |
|
| Kiinteistötunnus | 405-437-3-105 |
| Nimi | Hartikainen Ulla |
|---|---|
| Sähköposti | [email protected] |
| Puhelin | 044 7979 160 |
| Yrityksen nimi | Asuntomesta Oy |
| Toimiston nimi | Asuntomesta Oy LKV |
| Yrityksen nimi | Asuntomesta Oy |
|---|---|
| Toimiston nimi | Asuntomesta Oy LKV |
| Osoite | Raatimiehenkatu 13 lh 9, LAPPEENRANTA |
| Toimiston puhelin | +358 5 5412 030 |
| Toimiston sähköposti | [email protected] |